



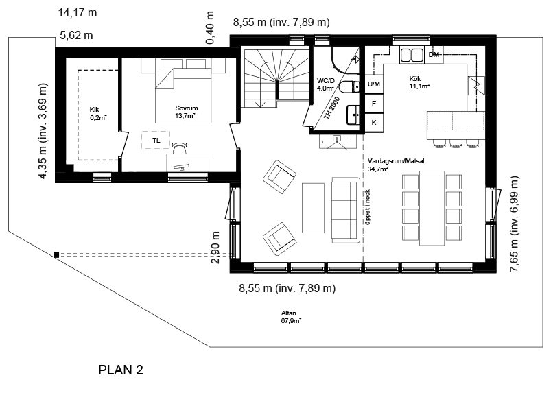
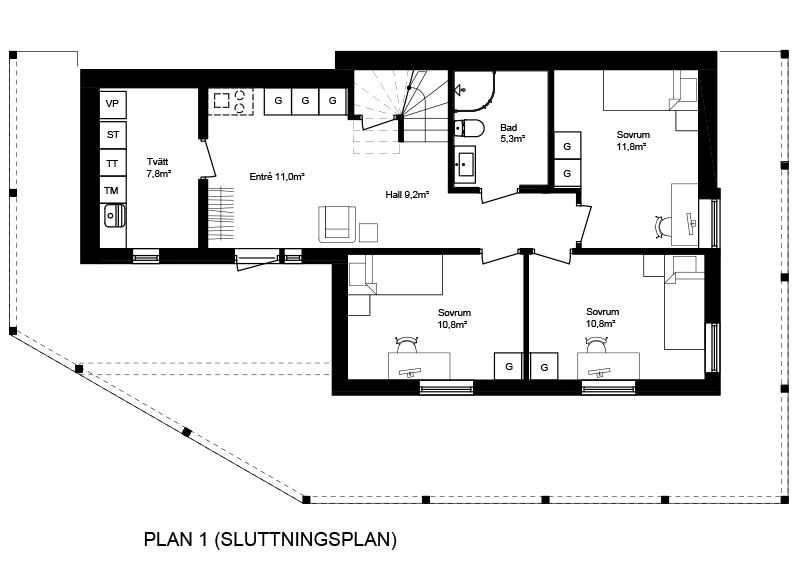
Villa Källvik är en smart planerad sluttningsvilla som erbjuder både stil och funktionalitet. Med en boarea på 148,7 kvm rymmer huset en generös entré och en rymlig umgängesavdelning. De stora fönsterpartierna på ovanvåningen ger ett underbart ljusinsläpp och skapar en ljus och luftig atmosfär.
Generös balkong och sovrum
Den stora balkongen förlänger vardagsrummet och ger en perfekt utomhusyta för sociala aktiviteter under sommaren. Källvik har också fyra rejäla sovrum, där master bedroom är utrustat med en rymlig walk-in closet.
Anpassning efter ditt behov
Vi erbjuder även möjligheten att anpassa Källvik för att möta just dina specifika önskemål och behov.



